Terreno p prédio de Habitação junto do Hosp de S.João
 
  
  
  
  
  
 | Preço (Sem Pontuação) | 360 000€ | 
| Área | PortoVeja no google map Porto | 
| Tipo de Anúncio | Imobiliária Oferta | 
| m² | 230 m² | 
Ang11739
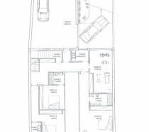
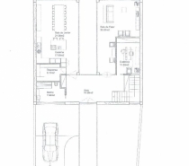
- Terreno em fase de aprovação de projeto com uma área de 230m2; tem algumas casas de R/C que podem ser reabilitadas ou fazer construção de raiz;está para aprovação um projecto de um prédio com 6m2 x 7m2 por piso , em 5 pisos;
Terreno para construção de prédios em aprovação para cave + r/c e 3 andares.
Construção prevista de cave +1 T0 com Terraço.
R/C - 2 T1 Kit e 1º , 2º e 3º - 6 T1s Kit
Num total de 9 fracções.Bem muito bem localizado a 800 mts do H.S.João, Metro e Faculdades.
Terreno p prédio de Habitação junto do Hosp de S.João
- € p/h incall
- Porto
Envie uma mensagem
Mande uma mensagem
Email do anunciante
Ao contactar este anunciante você está concordando com os Termos e Condições do Vivalocal.
Economize tempo na próxima vez
Tenha acesso ao email dos anunciantes accessando sua conta no Vivalocal.
Crie uma contaVocê encontrou o que procurava?
< Voltar aos resultadosMande uma mensagem
Email do anunciante
Ao contactar este anunciante você está concordando com os Termos e Condições do Vivalocal.
Economize tempo na próxima vez
Tenha acesso ao email dos anunciantes accessando sua conta no Vivalocal.
Crie uma conta 
  
  
  
  
  
  
  
  
 